-
首发 | 光影下的自然之舞,别具一格的清丽灵动!
-
2020/12/23 10:22:42
-
久在樊笼里 复得返自然
古人将世俗生活喻为“樊笼”,呼吁回归自然风物的田园日常。而对于现代社会的我们来说,“樊笼”则更像是钢筋水泥构筑的喧嚣都市,千城一面的大环境让我们对城市的感知停留在满目玻璃幕墙的冷峻与坚毅之中,缺少了可感触、可生活的活力与美。

城市在不断扩张,而居于其中的我们,亦在这种变化中寻找着属于与个人生活、与城市审美对话的端口。我们的设计在这样的前提下展开。 
本案位于广东清远,一座小城,却有着岭南秀丽的山水风光,和令人着迷的文化历史,在这样的城市基底中,设计以站立在时代生活的建造语境,来回应空间之于清远城市、之于当代人生活诉求的肌理与内涵,力求通过设计概念、形式的转化,使空间从灰扑扑的城市群像中跳脱出来,重现崭新面貌。

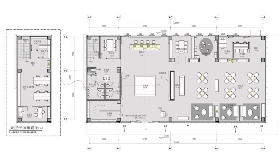
整个销售中心以合理尺度与动线引导规划出了包含前厅接待、中部咖啡水吧、洽谈区,及茶室、儿童活动区等多个功能区域,并依据人们在空间中行进流转的动线安置不同区域的层次,使之形成空间表达及动线上的“秩序性”。

在此基础上,设计从城市肌理、与当代人生活的真实需求出发,提取清远城市山水中的材料与色彩意向,营造低缓,而清丽舒适的氛围效果,同时,加载自艺术品与装置的斑斓与波光粼粼,则以一种跳脱的活力为空间带来迎合当代人的精巧的品味属性。

由造型简洁的接待前厅向内,来到开敞的洽谈区环境中。整面的对外打开,为这个方正的洽谈空间注入了与室外光景的自然交互,阳光穿过立面的玻璃外墙,经过框架与线条的筛虑进入人们交谈的舒适氛围中。 
洽谈区呈一字排布,幽蓝色单椅大胆而轻盈,镂空的腰部反衬出米色皮垫的温和光泽,在色彩的互补中,建立起空间的视觉私密度与连贯性。

尽头的画作,是来自于艺术家的《莎士比亚的爱与诗》,强烈的肌理感,与渐变的层次关系为空间带来艺术性的启发。而延续自洽谈区的色彩印象,也呼应了设计师在选材之处对空间整体的缜密考量。

临窗的深洽区,则以更为经典的米灰色沙发,搭配棕色单椅的组合,转换为优雅的沉稳调性。在我们的设想中,如此柔和的自然光影,当应与当季的自然之物相配。

因此,在多处转角及台面,我们从清远当地挑选当季的绿植、花艺置入,时间流变,而植物鲜活,永远为人们带来着生命的自由气息。

一旁红色的托盘巧妙地嵌入大理石茶几,形成不经意的跳跃,链接起空间、城市、当下、过去的雅致意涵。


在这种轻巧的主体空间之外,两个空间属性强烈的功能区域则以大理石与木质的深厚、沉稳,形成空间节奏起伏与变化。

水吧台以年轻人喜爱的手冲咖啡为主题,带着咖啡精细的研磨品鉴工艺的启发,我们在这个区域以强调细微之处人们的真实感受为主,考量每一个细节。每一个咖啡元素之间,细微而精确的间隔,让生活的灵感得以自由地穿越。

由天花直下长余三米的极简吊灯,以金属和玻璃穿插为咖啡品鉴增加一丝仪式感的精致。一杯咖啡亦是一段人生,苦与甜都包含其中。

而在茶室,同样厚重的底色中,却毫无咖啡区的精巧意味,而是以木质的温润围合层次,一盆浅浅矮矮的青苔绿,一组自上垂吊而下的茶壶组合,将清远人香气萦绕间充盈的朴素生活哲学尽示于人。

除此之外,设计以考量销售中心的空间属性,设置了专属的儿童活动区。设计师巧妙利用结构空间的墙面凹凸关系,带来呼应主题空间的构造形态。明亮艳丽的色彩层次,醒目童趣的乐高积木,与实木定制的活动家具,成为空间的灵动因子,为孩子们带来了与空间的完美互动。


平面图
项目名称:力高·君誉府售楼处
地 址:中国·清远
项目面积:400㎡
完工时间:2020.10
甲方单位:力高地产
室内设计:GRAVITY万有引力设计
软装设计:GRAVITY万有引力设计
项目摄影:乐在拍 Lephoto
白丽雪 万有引力创始人兼设计总监
| GRAVITY 万有引力设计 |
万有引力设计总监白丽雪,毕业于清华大学环境艺术设计专业,从业十余年,作品遍布全国,设计作品追求“永恒、创意”。
GRAVITY(万有引力设计)成立于2014年,立足于中国创新创意先锋城市深圳,以睿智的设计创意、卓越的设计管理,为商业地产、精品酒店提供高端设计服务。GRAVITY强调作品的原创性与当代性,在长期的设计实践中融合东西方文化精华,以其独特的艺术品位与深厚的文化底蕴,为高端业主创造不受时空限制的唯美自然空间。
GRAVITY长期合作的企业和客户包括:华润集团、宝能集团、中南地产、世贸地产、力高集团、奥园集团、泰富华集团、佳兆业集团、颐安集团、唐商集团、群升地产、亚朵酒店顾问有限公司、洲际酒店管理集团、衡泰酒店开发集团等一线地产及酒店开发集团。公司及创始人所获专业奖项包括CIID中国室内设计大奖、APDC亚太室内设计精英邀请赛银奖、艾特奖、现代装饰传媒奖、中国室内设计新势力榜等国内国际大奖。