-
水相设计 x 万有引力: 光、空气、水,温润质朴的和谐之音
-
2020/12/16 13:56:21
-
清净之所
在俗世里寻见璞真宁静、和谐无扰的清静之所,无论什么时代皆让人心向往之,恰如《桃花源记》里描述渔人缘溪而行意外发现秘境的故事:“忽逢桃花林,夹岸数百步,中无杂树,芳草鲜美,落英缤纷,渔人甚异之﹔复前行,欲穷其林⋯⋯”这豁然开朗的感受成为此案设计的灵光。
厦门中南地产别于传统售楼处的前提:售楼处建筑日后将供在地小区永续使用,其二,两层楼空间除接待入口,大部分使用面积位于地景下。如何发挥与外隔绝独立场域的特点,同时维持阳光、空气与水三元素的环境架构,是负责此案的水相设计首要设定的课题。
01.
茶之源,取一瓢饮
预期未来小区应用的蓝图,我们从一楼入口开始建立串连在地记忆的地景。过往村镇生活总以老树为集会核心,链结人们交换日常信息与情感,生活大小事向树下靠拢是习惯也成一种集体记忆。而茶,又是老厦门的文化主轴及精髓,烹水泡茶、以茶待友是仪式更是生活,无关乎茶的等级,饮的是自在净心。
△概念图
一座湖泊环绕映衬天光的玻璃茶庭是序曲,如透明容器装载着茶席上的仪式行为,外在川流的喧嚣对应内部不疾不徐的宁静,沈淀人们踏入后的心境。茶亭中央横过一道流水长桌穿透玻璃帷幕,于桌边烹茶品茗时水声不断潺潺流入湖泊,冲出一室韵味舒展。虽非重现王羲之流水以泛酒的曲水流觞,但清流激湍、映带左右的雅趣亦不远矣。
△接待柜台,茶桌
02.
光之源,欲穷其径
茶席旁地板有处开口,是通往湖泊下方洞穴的阶梯。大抵这世间所有传奇的世外桃源皆始于一处隐而不显、难以觉察的入口,是以外人屡屡探寻里头那从容不受打扰、时光悠然的生活。透过这段昏暗无饰的地下廊道,洗礼人们的日常杂绪从而沈淀心绪回归本质。至此,再循着廊道末端隐晦微光引导,踏入隐身湖底另处截然不同、豁然开朗的场域。
△立面图
△至地下一楼通道
别有洞天的地底因着环形天井纳入阳光,引水、借光而在湖底世界滋养了一株向天伸展的树,形成天地循环最单纯的模样。白昼任树影在室内游走,人们卸下行程计划、卸下惯性速度,仅就着枝叶淡影享受遮荫、靠拢相聚,以自然直觉阅读日夜和四季,用一盏又一盏茶来记录时光,超脱城市时序的空间,让人得以用舒适的吐纳节奏感受光阴变化。
△户外天井,用餐区
△墙面树影
03.
隐于湖,时间让物浸润成画
抬头可见周围穿透屋顶的上层湖水,让水面筛过日光温柔荡漾在墙,无声摇曳的光束宛如隐身湖面下,地表的车水马龙与自己拉开了平静的距离,在湖底发生的事,不受日常时间约束。
△共享厨房
为延续外界不染的超然感受,我们屏弃了矫饰与刺激感官的色彩,回归温润、自然质朴的材质,并维持纯粹的质地与触感。过程中极力避免过度表现的形式,以直觉性的线条架构空间。因为简洁,使用者可不受干扰地觉察自然光影、色调。去装饰的语法又见如墙上长幅画卷,如当代水墨去具象轮廓与文字的淡泊飘渺气氛,滤去观者心绪里的纷扰,只有随着年岁渐显风霜的铜记录时间,映衬人们在历史洪流中努力所留下的变化。
△用餐区
连结土壤脉络的手作陶器,遗留木头上的清香,藤编严严密密织着的起伏,它们都在细微处藏着差异,那是物叙述记忆和故事的肌理,是情感流动的微观,作为茶席、建筑里的点缀,它们亦是日后人文活动的楔子。
△阅读区
△户外天井,阅读区
△阶梯教室,阅读区
04.
城之心,养树亦养情
无论是售楼处或作为日后小区艺文活动中心,我们撇除过份具体的功能框架,希望以设计创造一处开启对话的场域。因都市化疏离的个体,能寻回围绕着树相聚、闲话家常的群体凝聚引力。“便要还家,设洒杀鸡作食,村中闻有此人,咸来问讯。”桃花源里人们平实相待的性情、聚落和谐气氛,盼能在此重现而成为新小区珍贵的生活底蕴。无论外界如何喧闹、城市怎么蜕变,寻到秘境的入口潜行湖底,总能从异于寻常的视角找到宁静。
△展示区
△办公室廊道
△厕所
△室内装饰
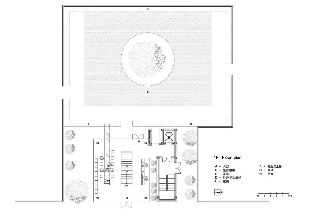
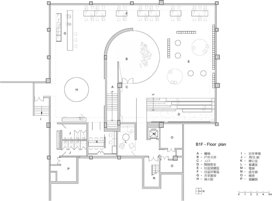
平面图▽
△一层平面图
△地下一层平面图
项目名称:厦门中南九锦台
空间设计:李智翔、葛祝纬、林其纬、黄昱诚、陈宥儒 / 水相设计Waterfrom Design
软装设计: 水相设计Waterfrom Design + 万有引力室内设计有限公司
业主:中南置地厦门海西区域公司(卢庆林、陈亚凤、黄焕新、柴丽敏)
空间性质:售楼处、接待会馆
座落位置:厦门翔安区
室内面积:750 m2
空间格局:接待区、品茗区、阶梯教室、儿童阅读区、小区厨房、用餐区、办公区
设计时间:2019.04-2019.05
施工时间:2019.08-2019.10
主要材料:莱姆石、城堡灰石材、香杉实木、红铜染黑、黄铜染黑、手工漆、抓痕泥客石
摄影:赵宇晨
关于水相设计
水相设计Waterfrom Design
『水的形状来自承载的容器,以无垠想象适应环境变化。』
成立于2008年的水相设计跨足室内与建筑领域,秉持设计应如『水』的初衷,纯净、有机又多变,本质上保持其原有的简洁性,意念上展现无框架的可能性。致力关注于空间的故事脉络及时间光线,创造一个具有情感沉淀及讯息想象的空间。
予人沉淀的空间不希望以『开宗明义』的设计手法,希望的作品是,生活在此空间中一段时间、一个月、一年,甚至十年后,让时间沉淀过后对于空间有不同的解释与感情。
予人想象的空间不做一目了然的设计,希望空间使用者自己寻找答案,找到属于自己的剧本,就像艺术评论家用不同的角度阐述画作。
李智翔
水相设计设计总监
"设计过程与结果是难以预知的,所以必须尝试所有的可能,唯有持续的绘製,从多种的版本中找到最后的答案。「约略性质」的美感是我们保持的信念,所有的画作线条都不是用尺画出来的,我喜欢的设计不是刻意的工整,如果可以稍微有一点的「自然线条」会更接近我们想表达的空间。"-李智翔
李智翔从事设计迄今十馀年,作品揉和极简与幽默,毕业自纽约普瑞特艺术学院室内设计硕士与丹麦哥本哈根大学建筑研究。带着艺术、人文、哲学的思考,李智翔的学习养成到执业,有著建筑设计般的理性思维,亦有艺术家的叛逆本质,他喜欢在规则的例外对既有秩序重新定义,在不可预知的不准确性下发现惊奇。擅长将空间装置艺术化,喜爱由生活探索灵感的他,藉由大量艺术作品、展览与阅读吸取养分,将深刻感受转化为设计灵光。
白丽雪万有引力创始人及设计总监
万有引力设计总监白丽雪,毕业于清华大学环境艺术设计专业,从业十余年,作品遍布全国,设计作品追求“永恒、创意”。
万有引力室内设计公司成立于2014年,立足于中国创新创意先锋城市深圳,以睿智的设计创意、卓越的设计管理,为商业地产、精品酒店提供高端设计服务。GRAVITY强调作品的原创性与当代性,在长期的设计实践中融合东西方文化精华,以其独特的艺术品位与深厚的文化底蕴,为高端业主创造不受时空限制的唯美自然空间。
水相设计代表作▽
△远洋集团汉阳归元寺售楼处
△济南华置万象天地示范区售楼处
△阳光城集团深圳天悦售楼处
△分子药局
△凝结的时光展-水相事务所














































































